Modern Treehouse in Historic Spanish Turret House | Apartment in Portland

2 Bedroom Apartment in Irvington, Portland
This is not your typical short term rental with IKEA furniture and misleading photos! The Turret House is located on a large corner lot in Portland's most beautiful Eastside neighborhood (Irvington) and surrounded by gorgeous properties and tree-canopied streets. The unit was meticulously updated, while maintaining its Spanish Californian architecture and wide open circular floor plan. My partner and I are both designers and we’ve worked hard to blend tradition and modern simplicity.
Walk up the wide staircase to a magical old brick, southwest-facing patio perch that sits under a 100 year-old cedar tree and is surrounded by deciduous trees, art installations, and a meticulously cultivated garden with a 100 foot-long dry stack wall. An original 3-inch thick tongue & groove, fir and wrought iron door gives entry to the winding turret staircase that leads to your second floor private unit. A solid brass Moroccan Ceiling light projects geometric patterns on the circular turret walls at night while the custom etched, leaded glass windows reflect a full spectrum of colors in the sunshine.
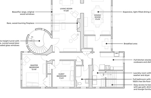
From the turret, you walk into your second floor, 2,000 square-foot flat. The unit is truly HUGE and is surrounded by more than 30 original, single-paned window bays that deliver much light and old-growth tree views. The unit also features over 50 pieces of original art. Original oak floors throughout, original white hex tile in the bathroom, lath & plaster walls, tall ceilings, built-in cubbies, a large fireplace, and arched doorways make the unit feel like you’re in Spain a century ago. Each room is extremely spacious and well-appointed with a combination of American Heritage and Mid-Century Modern furniture. The furniture, beautiful indoor plants, and architecture create a unique experience that blends current and timeless design.
The neighborhood is an architectural dream and designated as a Historic District. It features loads of streets canopied by old-growth deciduous trees. It is an ideal place from which to centrally access the city while residing in a lush oasis of European and Craftsmen architecture
ROOM DESCRIPTIONS
- Large brick patio with double hammock, gas BBQ, dining table for 4, night lighting for evening hosting, great views, and loads of art that, together, make for a magical place to read, entertain, and relax.
- 1 giant master bedroom with new King, 100% organic latex mattress, large flat screen TV with Apple TV, double closet, beautiful Mid-Century rocking chair, rare Kurdish rug, and a stunning walnut credenza.
- 1 spacious guest bedroom with new queen bed, desk, & solid wood furniture
- 1 giant bathroom with full bathtub, built-in mirror/medicine closet, and original hex tile floor
- Huge living room with a large, stocked fireplace, very tall ceilings, brand new extra-long chez lounge sofa and chairs, work table, and a huge library of incredible books.
- Huge dining room with beautiful leather and oak dining chairs - seating for 8.
- Breakfast nook with wood table and chairs.
- Fully stocked kitchen with everything you need and real knives.
- Private laundry room with washer and dryer.
- Ample, safe parking immediately in front of property or in driveway
The front yard patios and furniture are available to guests. The backyard is used exclusively by the owners only.
OTHER UNIT FEATURES:
- Air Conditioning in living room and bedrooms during summer.
- Beautiful art in every room
- Loads of daylight and tree views from each room
- High ceilings with Spanish style arches and lath & plaster walls throughout
The unit is a 18 min taxi from the airport. Its also 2 miles from downtown Portland and less than a mile from the Convention Center and Moda Center. Nike’s shared bike system is 5 short blocks away. MAX is 1 mile away. Busses are 3 blocks away. Most guests use Lyft or rent a car.
Pet fee for approved pets only.
The space is a 18 min taxi from the airport. Its also 2 miles from downtown Portland and less than a mile from the Convention Center and Moda Center. Nike’s shared bike system is 5 short blocks away. MAX is 1 mile away. Busses are 3 blocks away. Most guests use Lyft or rent a car.
Irvington is one of the country's largest historic neighborhoods and is centrally located for Eastside Culture while offering quick access to downtown via Broadway Ave. Irving Park is a 10 min walk from the house.
Modern Treehouse in Historic Spanish Turret House is located in Irvington. Modern Treehouse in Historic Spanish Turret House provides accommodation, featuring Laundry, Air Conditioner, Private Pool, among other amenities. This Apartment features Laundry, Air Conditioner, Private Pool, to make your stay a comfortable one.
Modern Treehouse in Historic Spanish Turret House has 2 Bedrooms , 1 Bathroom, and max occupancy of 5 people. The minimum rental for this property is 1 nights, but this can change depending on the season you plan on staying. Previous guests have given good rated it, and VRBO labeled it a top-rated Apartment because of the excellent services rendered by the owner or manager of this Apartment, and has consistently provided great experiences for their guests. Most families or guests that use it recommend it to their friends and some of them are repeat guests. Apartment has a friendly neighborhood, and the Irvington has interesting places to visit. If you want to learn more about the Apartment in Irvington, such as places to visit and things to do nearby, you can check below to learn more.
Amenities
Facility Overview
-
Air conditioning
-
Bathtub or shower
-
Hair dryer
-
Shampoo
-
Soap
-
Toilet paper
-
Towels provided
-
Dining table
-
Bed sheets provided
-
Dining room
-
Fireplace
-
Library
-
Living room
-
Blender
-
Coffee grinder
-
Electric kettle
-
Paper towels
-
Washing machine and dryer
-
Electric car charging station on site
-
2 per room
-
Pet friendly
-
Welcoming dogs only
-
Smoke-free property
-
Books
-
Flat-screen TV
-
Desk
-
Desk chair
-
Children's books
-
Playground
-
Free WiFi, with speed of 250+ Mbps (good for 3–5 people or up to 10 devices)
-
Barbecue grill
-
Furnished patio
-
Garden
-
Yard
-
Carbon monoxide detector
-
Deadbolt lock
-
Fire extinguisher
-
First aid kit
-
Smoke detector
-
Private pool
-
Sauna
Policies
Reviews
FAQ's
Is this Irvington apartment pet-friendly for guests?
Yes, pets are allowed at this property. Check the guest reviews to learn what guests had to share.
Does the Irvington apartment have a swimming pool?
Yes, this Irvington apartment has a swimming pool. Check the Facility Overview section for details about the pool and other available facilities.
How much does it cost per night to stay in Irvington apartment?
Best-rates for the Irvington apartment starts from $234 per night with includes Air Conditioner, Private Pool, Bedding/Linens, Pet Friendly, Pool, Child Friendly, Hot Tub, Kitchen, Laundry with all other facilities. Hotala.co.nz matches every traveler with their perfect hotel, resort, or rental and whether you are traveling with a group, friends, family, or pets.
Is Irvington apartment a family-friendly place to stay?
Based on the information we have received from the owner or our partner, this is considered to be a family-friendly property. Families have rated this apartment Good or guests have recommended them suitable for families. As reported by the owner or manager, the apartment has specified that children are welcome. Please see details about suitability for your family or inquire with the property to learn more.
Is the Irvington apartment wheelchair accessible or offer services for disabled guests?
Based on the information received from our partner, the Irvington apartment has not specified they are wheelchair accessible. Likewise, there is not an elevator specified as being available at the property. Specific accessibility details may be addressed in the property details section of this page.
What is the minimum night stay policy for the Irvington apartment?
Based on the information reported by the owner or manager, the Irvington apartment indicates 1 day stay policy at this apartment. Guests are cautioned that the minimum stay policy may differ based on seasonality or availability and may be at the discretion of the owner or manager.
What cancellation policy is in place for Irvington apartment?
Based on the information reported by the owner or manager, details for the cancellation policy for the Irvington apartment are as follows: Cancellation policy Guests are cautioned that the cancellation policy may differ based on seasonality, availability, or current travel restrictions. Guests should also be aware that this policy may be subject to change and should be confirmed prior to booking. More details may be available on this page in the property description. However, early check-in or late check-out can sometimes be negotiated between the guest and the owner or the manager of this property.