Enchanted Isle Hollywood Beach Resort | Apartment in Hollywood

12 Bedroom Apartment in Hollywood South Central Beach, Hollywood
Just a few steps from Hollywood Beach and 1.2 miles from North City Beach Park, Enchanted Isle Hollywood Beach Resort features accommodations in Hollywood, with a private beach area and an outdoor swimming pool. The air-conditioned accommodations are 1.6 miles from South City Beach Park. Outdoor seating is also available at the condo hotel. Featuring a well-equipped kitchen with a dishwasher and an oven, each unit also comes with a safety deposit box, a cable flat-screen TV, ironing facilities, desk, and a seating area with a sofa. Free Wifi is accessible to all guests, while selected rooms also offer a terrace. At the condo hotel, units are equipped with bed linen and towels. Yoga is available at the property. Broward Convention Center is 10 miles from Enchanted Isle Hollywood Beach Resort, while Seminole Hard Rock Hotel & Casino is 10 miles from the property. Fort Lauderdale-Hollywood International Airport is 6.8 miles away.
Enchanted Isle Hollywood Beach Resort is located in Hollywood.
This 12 Bedrooms Apartment is suitable for tourists and travelers. It has several amenities that would guarantee your comfort. These amenities include: Fireplace/Heating, Child Friendly, Parking, and several others. This is a 4 star rated property and has over 101 reviews with the average score of 8.3 . Coming to Hollywood and needing a place to stay? Be it for work or for leisure, consider staying at this Apartment for your next visit, you will surely love it.
You can check the reviews and description of this 12 Bedrooms Apartment if you want to learn more about this Hotala.co.nz place in Hollywood. These details are authentic, as they are provided by our partner, booking.com.
This Enchanted Isle Hollywood Beach Resort in Hollywood is well equipped and has all facilities that have been listed below. Please note that these details were shared to us by booking.com for the listed “Enchanted Isle Hollywood Beach Resort”. We solely rely on their shared details and are regarded as “accurate”. If you have any concerns about the information or accuracy describing this Apartment, please let us know.
Prices and Availability
The last seen price for this Apartment was USD US $168
Amenities
Facility Overview
-
Parking
-
Free parking
-
Parking on site
-
Private beach area
-
Hot tub/Jacuzzi
-
Beach
-
Yoga classes
-
Beachfront
-
Designated smoking area
-
Air conditioning
-
Wifi in all areas
-
Family rooms
-
Safe
-
Heating
-
Non-smoking rooms
-
Smoke-free property
-
Vending machine (snacks)
-
Vending machine (drinks)
-
Tour desk
-
Concierge
-
Laundry
-
Internet
-
Free Wifi
-
Wifi
-
Outdoor pool (year-round)
-
BBQ facilities
-
Outdoor furniture
-
Outdoor pool
-
Smoke alarms
-
Key access
-
Fire extinguishers
-
First aid kits available
-
Property cleaned by professional cleaning companies
-
Beach chairs/Loungers
-
Heated pool
-
Beach umbrellas
-
Swimming pool
Policies
Reviews
Room Arrangement
Room Info | Facilities |
---|---|
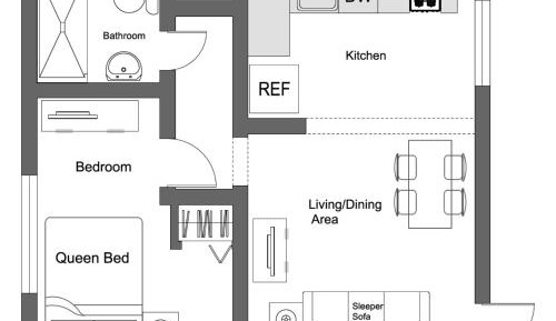
Deluxe Studio
Room Type:
Studio
Room Size:
21 m2
|
Food & DrinkTea/Coffee makerBathroomToilet, Bathtub or shower, Shower, Free toiletries, Body soap, Toilet paper, Towels, Conditioner, Shampoo, Walk-in showerGeneralIron, Smoke Alarm, Fire extinguisher, Trash cans, Safe, Air conditioning, Fan, Ironing facilitiesMedia & TechnologyTV, Cable channels, Flat-screen TVKitchenMicrowave, Refrigerator, Kitchen, Kitchenware, Coffee machine, Oven, Stovetop, Dishwasher, Dining tableLiving AreaSitting area, Sofa, DeskBedroomWardrobe or closet, Linens, Childrens' cribsOutdoorsOutdoor furnitureRoom AmenitiesFold-up bed, Non-feather pillow, Clothes rackPool and SpaPool towels |
One-Bedroom Apartment
Room Type:
Apartment
Room Size:
50 m2
|
Food & DrinkTea/Coffee makerBathroomToilet, Bathtub or shower, Shower, Free toiletries, Body soap, Toilet paper, Towels, Conditioner, Shampoo, Private bathroom, Walk-in showerGeneralIron, Smoke Alarm, Fire extinguisher, Trash cans, Safe, Air conditioning, Fan, Ironing facilitiesMedia & TechnologyTV, Cable channels, Flat-screen TVKitchenMicrowave, Refrigerator, Kitchen, Kitchenware, Coffee machine, Oven, Stovetop, Dishwasher, Dining tableLiving AreaSitting area, Sofa, DeskBedroomWardrobe or closet, Linens, Childrens' cribsViewPool viewOutdoorsOutdoor furnitureRoom AmenitiesFold-up bed, Sofa bed, Non-feather pillow, Clothes rackPool and SpaPool towels |
Deluxe One-Bedroom Apartment with Ocean View
Room Type:
Apartment
Room Size:
50 m2
|
Food & DrinkTea/Coffee makerBathroomToilet, Bathtub or shower, Shower, Free toiletries, Body soap, Toilet paper, Towels, Conditioner, Shampoo, Private bathroom, Walk-in showerGeneralIron, Smoke Alarm, Fire extinguisher, Trash cans, Safe, Air conditioning, Fan, Ironing facilitiesMedia & TechnologyTV, Cable channels, Flat-screen TVKitchenMicrowave, Refrigerator, Kitchen, Kitchenware, Coffee machine, Oven, Stovetop, Dishwasher, Dining tableLiving AreaSitting area, Sofa, DeskViewSea view, ViewBedroomWardrobe or closet, Linens, Childrens' cribsOutdoorsOutdoor furnitureRoom AmenitiesFold-up bed, Sofa bed, Non-feather pillow, Clothes rackPool and SpaPool towels |
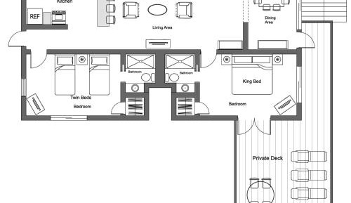
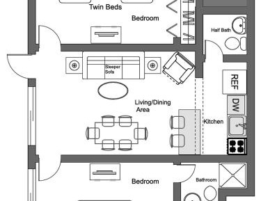
Two-Bedroom Apartment
Room Type:
Apartment
Room Size:
56 m2
|
Food & DrinkTea/Coffee makerBathroomToilet, Bathtub or shower, Shower, Free toiletries, Body soap, Toilet paper, Towels, Conditioner, Shampoo, Private bathroom, Walk-in showerGeneralIron, Smoke Alarm, Fire extinguisher, Trash cans, Safe, Air conditioning, Fan, Ironing facilitiesMedia & TechnologyTV, Cable channels, Flat-screen TVKitchenMicrowave, Refrigerator, Kitchen, Kitchenware, Coffee machine, Oven, Stovetop, Dishwasher, Dining tableLiving AreaSitting area, Sofa, DeskBedroomWardrobe or closet, Linens, Childrens' cribsOutdoorsOutdoor furnitureRoom AmenitiesFold-up bed, Sofa bed, Non-feather pillow, Clothes rackPool and SpaPool towelsExclusive servicesConcierge services |
Two-Bedroom Apartment with Pool View
Room Type:
Apartment
Room Size:
56 m2
|
Food & DrinkTea/Coffee makerBathroomToilet, Bathtub or shower, Shower, Free toiletries, Body soap, Toilet paper, Towels, Conditioner, Shampoo, Private bathroom, Walk-in showerGeneralIron, Smoke Alarm, Fire extinguisher, Trash cans, Safe, Air conditioning, Fan, Ironing facilitiesMedia & TechnologyTV, Cable channels, Flat-screen TVKitchenMicrowave, Refrigerator, Kitchen, Kitchenware, Coffee machine, Oven, Stovetop, Dishwasher, Dining tableLiving AreaSitting area, Sofa, DeskBedroomWardrobe or closet, Linens, Childrens' cribsViewPool viewOutdoorsOutdoor furnitureRoom AmenitiesFold-up bed, Sofa bed, Non-feather pillow, Clothes rackPool and SpaPool towelsExclusive servicesConcierge services |
Two-Bedroom Apartment - Oceanfront
Room Type:
Apartment
Room Size:
56 m2
|
Food & DrinkTea/Coffee makerBathroomToilet, Bathtub or shower, Shower, Free toiletries, Body soap, Toilet paper, Towels, Conditioner, Shampoo, Private bathroom, Walk-in showerGeneralIron, Smoke Alarm, Fire extinguisher, Trash cans, Safe, Air conditioning, Fan, Ironing facilitiesMedia & TechnologyTV, Cable channels, Flat-screen TVKitchenMicrowave, Refrigerator, Kitchen, Kitchenware, Coffee machine, Oven, Stovetop, Dishwasher, Dining tableLiving AreaSitting area, Sofa, DeskViewSea view, ViewBedroomWardrobe or closet, Linens, Childrens' cribsOutdoorsOutdoor furnitureRoom AmenitiesFold-up bed, Sofa bed, Non-feather pillow, Clothes rackPool and SpaPool towelsExclusive servicesConcierge services |
Penthouse Apartment
Room Type:
Apartment
Room Size:
84 m2
|
Food & DrinkTea/Coffee makerBathroomToilet, Bathtub or shower, Shower, Free toiletries, Body soap, Toilet paper, Towels, Conditioner, Shampoo, Private bathroom, Walk-in showerGeneralIron, Smoke Alarm, Fire extinguisher, Trash cans, Safe, Air conditioning, Fan, Ironing facilitiesMedia & TechnologyTV, Cable channels, Flat-screen TVOutdoorsPatio, Outdoor furniture, Balcony, TerraceKitchenMicrowave, Refrigerator, Kitchen, Kitchenware, Coffee machine, Oven, Stovetop, Dishwasher, Dining tableLiving AreaSitting area, Sofa, DeskViewSea view, ViewBedroomWardrobe or closet, Linens, Childrens' cribsRoom AmenitiesFold-up bed, Sofa bed, Non-feather pillow, Clothes rackPool and SpaPool towelsExclusive servicesConcierge services |
Standard Apartment
Room Type:
Apartment
Room Size:
50 m2
|
Food & DrinkTea/Coffee makerBathroomToilet, Bathtub or shower, Shower, Free toiletries, Body soap, Toilet paper, Towels, Conditioner, Shampoo, Private bathroom, Walk-in showerGeneralIron, Smoke Alarm, Fire extinguisher, Trash cans, Safe, Air conditioning, Fan, Ironing facilitiesMedia & TechnologyTV, Cable channels, Flat-screen TVKitchenMicrowave, Refrigerator, Kitchen, Kitchenware, Coffee machine, Oven, Stovetop, Dishwasher, Dining tableLiving AreaSitting area, Sofa, DeskBedroomWardrobe or closet, Linens, Childrens' cribsOutdoorsOutdoor furnitureRoom AmenitiesFold-up bed, Sofa bed, Non-feather pillow, Clothes rackPool and SpaPool towels |
FAQ's
Is this Hollywood South Central Beach apartment pet-friendly for guests?
No, pets are not allowed at this property. Check the guest reviews to learn what guests had to share.
What time is check-in & check-out at Hollywood South Central Beach apartment?
Check-in time for Hollywood South Central Beach apartment starts counting from 4:00 PM and check-out is until 10:00 AM. However, early check-in or late check-out can sometimes be negotiated between the guest and the owner or the manager of this property.
Does the Hollywood South Central Beach apartment have a swimming pool?
Yes, this Hollywood South Central Beach apartment has a swimming pool. Check the Facility Overview section for details about the pool and other available facilities.
How much does it cost per night to stay in Hollywood South Central Beach apartment?
Best-rates for the Hollywood South Central Beach apartment starts from $168 per night with includes Oceanfront, Fireplace/Heating, Child Friendly, Parking, Ocean View, Barbecue/Outdoor Cooking, Internet, Designated Smoking Area, View, Balcony/Terrace, Security/Safety, Wellness Facilities, Guest Services, Air Conditioner, Pool, Private Beach, Hot Tub, Laundry with all other facilities. Hotala.co.nz matches every traveler with their perfect hotel, resort, or rental and whether you are traveling with a group, friends, family, or pets.
Is Hollywood South Central Beach apartment a family-friendly place to stay?
Based on the information we have received from the owner or our partner, this is considered to be a family-friendly property. Families have rated this apartment 4 stars or guests have recommended them suitable for families. As reported by the owner or manager, the apartment has specified that children are welcome. Please see details about suitability for your family or inquire with the property to learn more.
Is the Hollywood South Central Beach apartment wheelchair accessible or offer services for disabled guests?
Based on the information received from our partner, the Hollywood South Central Beach apartment has not specified they are wheelchair accessible. Likewise, there is not an elevator specified as being available at the property. Specific accessibility details may be addressed in the property details section of this page.
What is the minimum night stay policy for the Hollywood South Central Beach apartment?
Based on the information reported by the owner or manager, the Hollywood South Central Beach apartment indicates 1 day stay policy at this apartment. Guests are cautioned that the minimum stay policy may differ based on seasonality or availability and may be at the discretion of the owner or manager.
What cancellation policy is in place for Hollywood South Central Beach apartment?
Based on the information reported by the owner or manager, details for the cancellation policy for the Hollywood South Central Beach apartment are as follows: Cancellation policy Guests are cautioned that the cancellation policy may differ based on seasonality, availability, or current travel restrictions. Guests should also be aware that this policy may be subject to change and should be confirmed prior to booking. More details may be available on this page in the property description. However, early check-in or late check-out can sometimes be negotiated between the guest and the owner or the manager of this property.